(仮称)宝町メディカルプラザ 新築2階建物件
| 住所 | 東大阪市宝町 |
|---|---|
| 募集科目 | 内科・皮膚科・その他科目、応相談 |
| 面積 | 専有面積 85〜120㎡程度 |
| 賃料 | 賃料:11,000/坪・月(税別) 共益費:7,000/月(税別) 敷金:6ヶ月分 礼金:1ヶ月分 |
| アクセス | 近鉄けいはんな線「新石切駅」徒歩約 7 分、旧170号線道路沿い東大阪市宝町 |
| 備考 | 開業予定:2024/4月 |
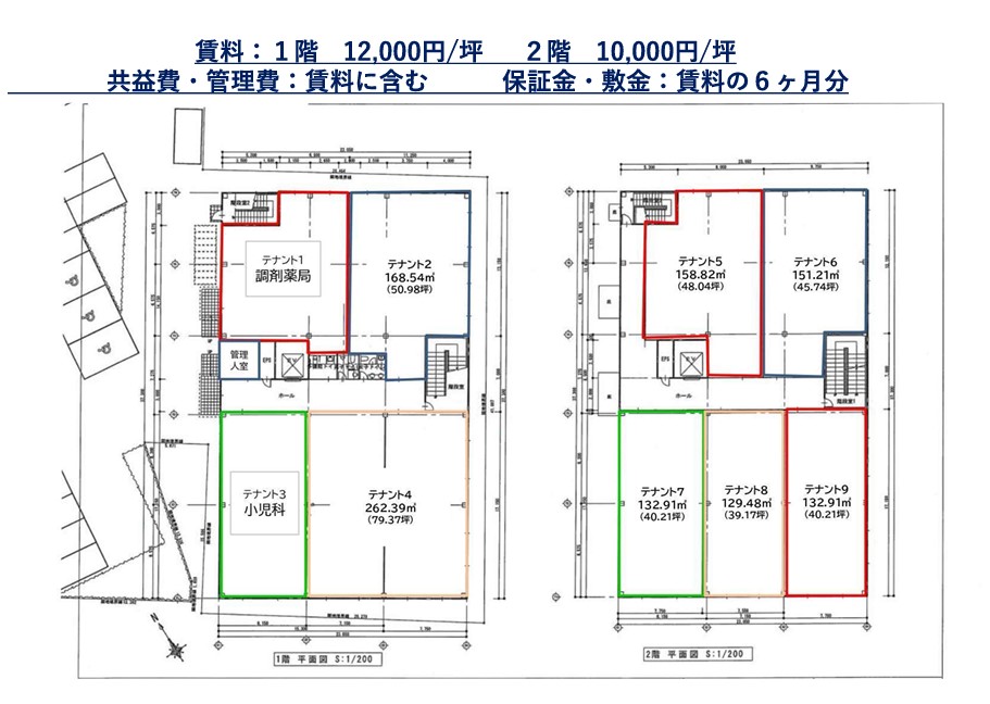
(仮称)JR島本駅前医療モールプロジェクト(2023年秋竣工予定)
| 住所 | 大阪府三島郡島本町櫻井2丁目 |
|---|---|
| 募集科目 | 医療関係全科目 |
| 面積 | 39.17坪~79.37坪 1階、2階 7区画 |
| 賃料 | 1F:坪当り12,000円(共益費含む)、2F:坪当り10,000円(共益費含む) |
| アクセス | JR「摂津富田駅」徒歩10分 |
| 備考 | 2023年 秋 オープン予定 JR島本駅前徒歩1分の新築、好立地案件 |
枚方医療テナント
| 住所 | 枚方市新町1丁目 |
|---|---|
| 募集科目 | 内科・心療内科・皮膚科 耳鼻咽喉科・小児科 他 |
| 面積 | 3階部分95.78㎡(約29坪) |
| 賃料 | 7,000円/坪 (消費税等別途・共益費込) |
| アクセス | 京阪「枚方市駅」北口より徒歩約3分 |
| 備考 | 関西医科大学付属病院前 |
高槻富田丘CLINIC BLD.(2023年秋竣工予定)
| 住所 | 高槻市富田丘町14-27 |
|---|---|
| 募集科目 | 医療関係全科目 |
| 面積 | 3F80坪(区画割可能) |
| 賃料 | 12,000/坪(別途消費税) |
| アクセス | JR「摂津富田駅」徒歩10分 |
| 備考 |
豊中本町メディカルブリッジ(2023年8月竣工予定)
| 住所 | 豊中市本町3-4-26 |
|---|---|
| 募集科目 | 小児科、整形外科、皮膚科、眼科 |
| 面積 | 1階区画①:55.80坪 2階区画②:39.14坪、2階区画③:58.77坪 3階区画④:39.14坪、3階区画⑤:58.77坪 |
| 賃料 | 要相談 |
| アクセス | 阪急宝塚線「豊中駅」徒歩3分 |
| 備考 | 重量鉄骨造4階建て。2023年8月竣工予定。区画面積、共益費は変更の可能性あり。 【保証金】 賃料の6ヶ月分 【契約形態】 20年定期建物賃貸借契約 【その他】①半径1㎞圏内の夜間人口約41,000人。②住宅地から最寄り駅に向かう生活動線上。③スーパーマーケット前で、視認性の高い立地。④駐輪場スペース 約30台予定 |
クリニックステーション吹田SST
| 住所 | 吹田市岸部中5丁目1番1号 |
|---|---|
| 募集科目 | 皮膚科・整形外科・耳鼻科・眼科・その他応相談 |
| 面積 | ①58.64坪 ④41.14坪 ⑤60.76坪 |
| 賃料 | ①806,300円/月額②610,929円/月額③820,260円/月額 |
| アクセス | JR東海道線『岸部駅』徒歩約10分 |
| 備考 | ・サステナブルスマートタウン ・医療ゾーンを含む複合型商業施設 ・04.4内科・小児科 既開業 |
枚方出口・医療テナント
| 住所 | 枚方市出口1丁目1009-1 |
|---|---|
| 募集科目 | 内科・耳鼻科・皮膚科・小児科・泌尿器科・整形外科・心療内科・眼科 |
| 面積 | 1階A約231㎡(約70.0坪) 1階B約152㎡(約46.0坪) |
| 賃料 | 9,000円/坪 (共益費込) |
| アクセス | 京阪「光善寺駅」徒歩約10分 |
| 備考 | 新築クリニックテナント計画 |
柏原大正・医療テナント
| 住所 | 柏原市大正3丁目2-31 |
|---|---|
| 募集科目 | 内科・耳鼻科・皮膚科・整形外科・小児科・泌尿器科・心療内科・眼科 |
| 面積 | 2階部分約165㎡(50坪) |
| 賃料 | 5,000円/坪 (消費税等別途・共益費込) |
| アクセス | JR「柏原駅」より徒歩約10分 |
| 備考 |
布施足代商店街 医療テナント
| 住所 | 東大阪市足代1-21-11 2階 |
|---|---|
| 募集科目 | 内科・耳鼻科・皮膚科・小児科・整形外科・泌尿器科・心療内科・眼科 |
| 面積 | 2階A約155㎡(47.1坪) 2階B約155㎡(47.1坪) 2階C約201㎡(60.9坪) |
| 賃料 | 6,500円/坪 (消費税等別途・共益費込) |
| アクセス | 近鉄「布施駅」徒歩約4分 |
| 備考 |
寝屋川市成田西町 医療テナント
| 住所 | 寝屋川市成田西町549-4 |
|---|---|
| 募集科目 | 耳鼻科・整形外科・小児科・泌尿器科・眼科 |
| 面積 | 2階A約183㎡(55.6坪) 2階B約221㎡(67.0坪) 2階C約201㎡(61.0坪) |
| 賃料 | 9,000円/坪 (消費税等別途・共益費込) |
| アクセス | |
| 備考 |
茨木市舟木町医療モール
| 住所 | 大阪府茨木市舟木町15 |
|---|---|
| 募集科目 | 内科・整形外科・眼科・耳鼻咽喉科・皮膚科・小児科・心療内科・泌尿器科 |
| 面積 | 1階約191㎡(約58.0坪) 2階約294㎡(約89.0坪) 3階約188㎡(約57.0坪) |
| 賃料 | 応相談 |
| アクセス | 阪急「茨木市駅」徒歩約6分 |
| 備考 |
京橋クリニックモール
| 住所 | 大阪府大阪市都島区東野田町4丁目 |
|---|---|
| 募集科目 | 内科・整形外科・眼科・耳鼻咽喉科・皮膚科・小児科・心療内科・泌尿器科 |
| 面積 | ー |
| 賃料 | 応相談 |
| アクセス | 大阪市営地下鉄「京橋駅」徒歩約3分 |
| 備考 |
クリニックステーション光善寺
| 住所 | 大阪府枚方市北中振三丁目 |
|---|---|
| 募集科目 | 心療内科・小児科・泌尿器科・耳鼻科・脳神経外科・整形外科・その他 |
| 面積 | 添付参照 |
| 賃料 | 応相談 |
| アクセス | 京阪「光善寺駅」より徒歩1分 |
| 備考 |
大型商業施設隣接型医療ビル!上野芝クリニックモール
| 住所 | 大阪府堺市西区上野芝 |
|---|---|
| 募集科目 | 整形外科 |
| 面積 | 64.92坪 |
| 賃料 | 坪9,500円(月額/税別) |
| アクセス | JR阪和線「上野芝」駅近く |
| 備考 | 駅近で、人気のスーパー隣接型医療ビルです! 3階は小児科・1階は歯科が盛業中です。 西友、万代の両大型商業施設に隣接し、マンション群が立ち並んだ活況のエリアです。 |
JR桜ノ宮駅直ぐ目の前!医療ビル計画案件
| 住所 | 大阪市都島区中野町5丁目 |
|---|---|
| 募集科目 | 眼科・皮膚科・他(循環器内科・内科・糖尿病内科を除く) |
| 面積 | 1階26.58坪 2階31.68坪 3階21.53坪 |
| 賃料 | 応相談 |
| 備考 | 1階薬局、2階・3階をクリニック希望されています。内装は、あくまで案です。スケルトン渡しも可能です。 |





JR島本駅前医療モールプロジェクト1-1024x575.jpg)
JR島本駅前医療モールプロジェクト2-150x150.jpg)
JR島本駅前医療モールプロジェクト3-150x150.jpg)
JR島本駅前医療モールプロジェクト4-150x150.jpg)


















京橋クリニックモール計画.png)








